电话:17685892957,17605322886
400电话:400-869-6766
QQ:3415432585
地址:青岛市城阳区王沙路777号1号楼1层1-233网点
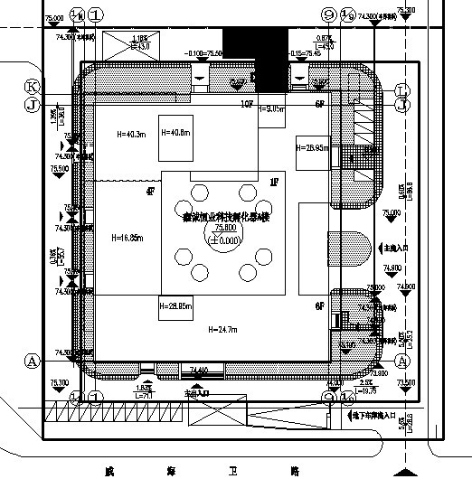
项目名称: 鑫诚恒业科技孵化器A楼项目。
项目地点:位于即墨市蓝色新区靖海卫路以北,龙山路以东;企业总部03地块。总用地面积11366.66平方米。
建筑用途:办公楼。
建筑层数和高度:本工程地下一层,地上主体10层;裙房4~6层;一层层高4.5米,其他层层高3.9米,建筑总高度40.3米。
建筑概况:地下一层为车库和设备用房;地上部分为开敞式办公。
建筑面积:本工程总建筑面积31659.66平方米,其中:地上24621.31平方米,地下7038.35平方米。
该办公楼总平面如下图所示:
(1)、《空气调节设计手册》(第二版)
(2)、《采暖通风与空气调节设计规范》 (GB50019-2012)
(3)、《山东省居住建筑节能设计标准》 (DBJ14-037-2006)
(4)、《地源热泵系统工程技术规范》 (GB50366-2005)(2009版)
(5)、建设单位对建筑的功能要求
室外设计参数

室内设计参数:
| 夏季 | 冬季 | |
| 温度(℃) | 24±2 | 20±2 |
| 相对湿度(%) | 40~60 | 30~50 |
| 空气流速(m/s) | 0.15~0.3 | 0.15~0.3 |
根据项目特点,该项目系统形式如下: 办公楼的办公室采用风机盘管+新风系统。2026世界杯出线球队机房设置于地下车库负一层。
(1)空调负荷:
根据甲方提供的设计图纸资料及负荷计算书,经统计,本工程的冷热负荷值如下表所示:
|
建筑名称 |
建筑面积 (m2) |
冷负荷 |
热负荷 |
|
|
办公楼 |
24621.31 |
2412 |
1725 |
从系统合理、可靠、节能、减少系统初投资等综合因素出发,本系统拟采用2026世界杯出线球队系统形式,冷热源方案如下:
按照地埋管负担本项目空调热负荷进行设计,选择2台螺杆式热泵机组提供该项目冷热负荷.本次方案设计预留锅炉接口,锅炉部分的设计不在此次范围内,仅在系统中设计预留口,并在建筑冷热源机房附近区域预留出设备安装空间。
(1)供热期:11月15日-4月5日;140天。
(2)制冷期:6月20日-10月1日;100天。
|
方案名称 |
方案一:冷却塔冷水机组+集中供热 |
方案二:复合式世界杯48队赛制规则 |
|
|
冷热源形式 |
冷水机组+市政供热 |
土壤源+冷水机组+锅炉 |
|
|
有无室外机 |
冷却塔 |
冷却塔 |
|
|
室外天气影响 |
冷却塔存在热岛效应;夏季高温时,系统效率下降 |
地源热泵系统运行不受室外天气影响 |
|
|
控制系统 |
冷水机组集中控制; 供热系统无法靠节能运行来降低费用; |
集中控制,可做到无人值守 |
|
|
噪音问题 |
存在噪声隐患,室外冷却塔有噪音 |
机组集中于机房内,室内噪声低 |
|
|
安装空间 |
需室外放置冷却塔;室内需安装风机盘管及暖气两套系统,占用空间大 |
室内水系统,占用空间不大 |
|
|
使用寿命 |
冷水机组位于机房内,一般为15年, |
地埋管系统使用寿命50年,机组使用寿命一般为15~20年 |
|
|
初投资估算(元/m2) |
230~280 |
250~330 |
|
|
空调运行费用估算(元/m2) |
50~55 |
20~30 |
|
|
维护管理方面 |
维护管理复杂;系统维修时影响整个建筑物空调使用 |
维护管理复杂,单台主机维修时,系统制冷量减少,但不影响整体使用 |
|
|
节能政策 |
无 |
可申请政府节能补贴 |
|
|
静态投资回收期 |
对比方案 |
3年 |
青岛沃富公司作为地源热泵工程的系统集成商,配备暖通工程师及项目经理、项目监理人员,拥有近60人的管理团队。设计人员均多年从事地源热泵工程的设计,施工管理人员具有国家注册建造师的执业资格并多年从事地源热泵工程的施工。
在青岛本地做过有代表性的地源热泵工程有,奥运会帆船媒体中心、青岛日本人学校、天泰蓝泉别墅群、中国海洋大学国家实验室、青岛市气象局、德国拜耳青岛工厂、青岛城投银沙滩度假区、2014年世园会等70余个工程案例成功实施。对本地区的地质情况了如指掌,掌握了大量的实际运行数据 ,对系统的设计、调试、运行、售后等积累了丰富的经验。
沃富与国际地源热泵主机、水泵、风机盘管等品牌生产商均有良好的合作关系。对所集成的产品性能了如指掌,对系统的匹配有着丰富的经验。
沃富位于崂山商务区,售后服务机构由经过地源热泵组严格培训的技术人员组成,已建立售后服务网点。售后服务反应及时、保障有力。
沃富公司作为青岛地区从事地源热泵行业的公司,承做的项目有政府项目、奥运项目、房地产项目等,项目运行效果良好,节能效果显著,千禧国际村项目顺利通过了国家可再生能源示范项目为期两年的节能监测。在业内树立了良好的口碑,沃富地源热泵已成为岛城自己人的品牌。
青岛沃富公司有成熟的运营团队,了解各种节能政策,熟悉各种申请程序及文本,公司已配合建设单位申请成功数十万平米的可再生能源专项资金。
办公地址:青岛市崂山区海尔路180号大荣中心A座